Skip to the content
logo mainlogo darklogo light
  • referenzen
  • portfolio
  • licht
  • blog
  • architekturbüro
  • faq
  • Kontakt
  • impressum
logo main
  • referenzen
  • portfolio
  • licht
  • blog
  • architekturbüro
  • faq
  • Kontakt
  • impressum
logo main
  • referenzen
  • portfolio
  • licht
  • blog
  • architekturbüro
  • faq
  • Kontakt
  • impressum
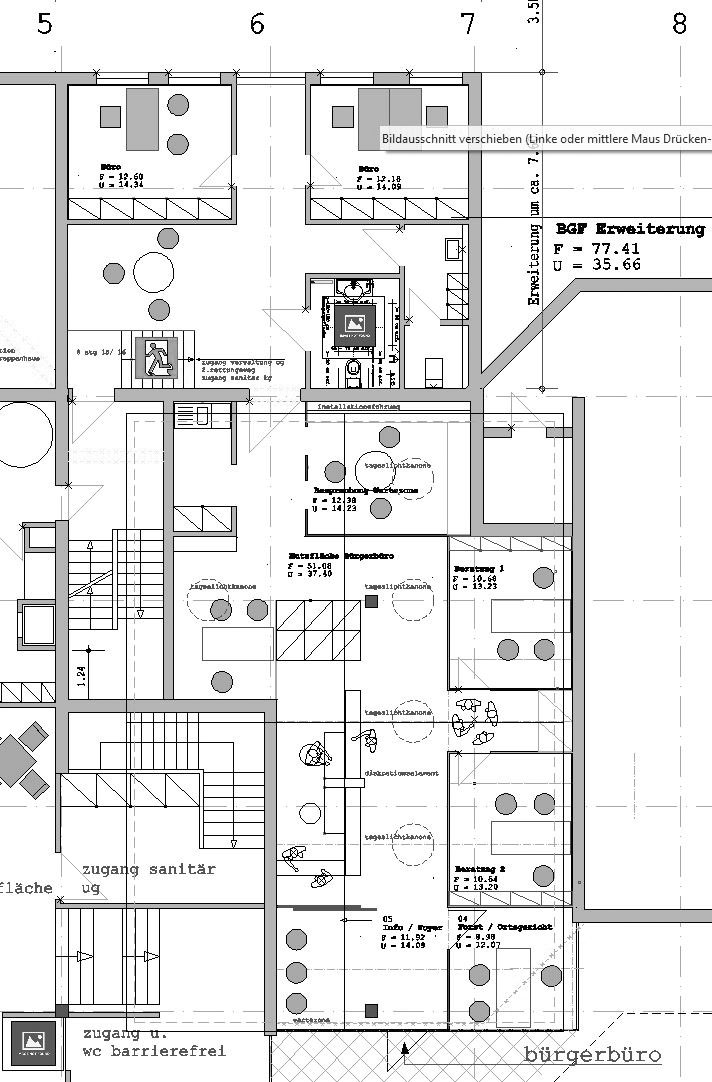
HomeKonzepteKonzeption für ein Bürgerbüro
Bürgerbüro 10 sw

Konzeption für ein Bürgerbüro

Konzepte
18. November 2019
Image 11
Image 10 000
Image 09
Image 04 000
Box2
Achse
Struktur Bürgerbüro sw
Share:
Prev post Ökostation Hochtaunuskreis
Social

Instagram

Behance

LinkedIn

Info

Kontakt

Terms of service

Studio

Kontakt

Camberger Straße 65, 65597 Hünfelden

+49-6438-835-290-0

dickab@dickab.de

© 2026 dick. architekten & ingenieure

Neubau einer viergruppigen Kindertagesstätte
Kundenhalle Wiesbadener Volksbank in Taunusstein Wehen
Frankfurter Volksbank GS Kelkheim
Landesmuseum Wiesbaden, Infomonolith und Illumination
Forum und Städtische Bühne Idstein
Haus Weisse Gräben Bad Camberg
Hessisches Landesmuseum Wiesbaden, Sanierung der Obergaden
Forum Taunusstein Wehen
Funktionsgebäude für das Freibad Glashütten Schlossborn
Neubau Verwaltungsgebäude, Wiesbadener Volksbank Idstein
Aussegnungshalle für Empfingen / BW, LPH 1-3 HOAI
Aussegnungshalle für Empfingen
vr bank Untertaunus eG, Geschäftsstelle Glashütten Schlossborn
1 2